Omschrijving

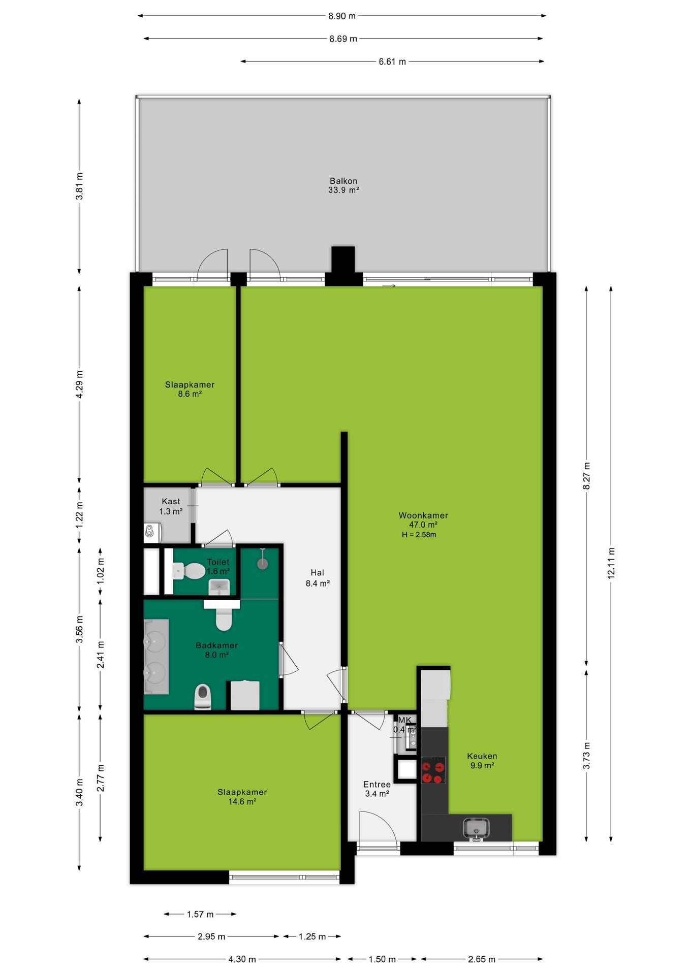
Aan 't Kofschip 15 ligt dit ruime 3-kamerappartement met een woonoppervlakte van maar liefst 108m². Het appartement beschikt over een groot balkon op het zuidwesten van maar liefst 34m², waar je het hele jaar door kunt genieten van de zon. Met veel lichtinval en een gunstige ligging nabij voorzieningen, is dit een plek waar je je direct thuis zult voelen.

Het appartement is gelegen in een rustige en fijne buurt in Veenendaal-West. Slechts een paar minuten lopen en je staat op het station Veenendaal-West, ideaal voor forenzen. Voor de dagelijkse boodschappen kun je terecht in winkelcentrum Ellekoot, op slechts 3 minuten fietsen. Zin in een actieve dag? Het nabijgelegen Zwembad De Vallei zorgt voor ontspanning en beweging. Bovendien ben je via de A12 binnen enkele minuten op weg naar omliggende steden en regio's.

Belangrijkste kenmerken:
+ Ruim appartement (108m²) op de begane grond
+ Groot balkon (34m²) op het zonnige zuidwesten
+ Goed geïsoleerd (energielabel B)
+ Eigen berging (6m²) op de begane grond
+ Voorschot energiekosten €222,- p/m
+ VvE-bijdrage van €212,- p/m

Indeling:
Begane grond:
Via de entree betreed je het appartement, waar je ook de meterkast vindt. Vanuit de hal heb je toegang tot de riante woonkamer van 47m², met grote schuifpui die zorgt voor veel lichtinval en toegang biedt tot het riante balkon. De L-vormige woonkamer biedt bovendien de mogelijkheid om gemakkelijk een extra (derde) slaapkamer te realiseren. De open keuken in hoekopstelling is voorzien van inbouwapparatuur, zoals een keramische kookplaat, afzuigkap, vaatwasser en combi-oven.

Via de woonkamer zijn twee deuren die leiden naar de hal, welke toegang geeft tot de overige vertrekken. Aan de voorzijde bevindt zich een slaapkamer van 15m², terwijl aan de achterzijde een slaapkamer van circa 9m² is gelegen met directe toegang tot het balkon. De badkamer is voorzien van een dubbele wastafel met meubel, een inloopdouche, een toilet, een bidet en een wasmachineaansluiting. Daarnaast is er een separaat 2e toilet en een praktische inbouwkast met cv-opstelling.

Buitenruimte
Het balkon op het zonnige zuidwesten is een absolute meerwaarde, met veel privacy en voldoende ruimte voor meerdere zitjes. Het rustige uitzicht over het water maakt het een heerlijke plek om te ontspannen. Dankzij het praktische zonnescherm kun je hier optimaal genieten van de lange en zonnige dagen.

Daarnaast beschikt de woning op de begane grond over een praktische berging van circa 6m², perfect voor het opbergen van spullen of het stallen van (elektrische) fietsen.

Koopovereenkomst:
Bij de verkoop zal er een standaard NVM koopovereenkomst worden gehanteerd.
Bij woningen welke ouder zijn dan 20 jaar, worden de volgende clausules opgenomen in de koopovereenkomst:
- Asbestclausule
- Ouderdomsclausule
- Niet bewoningsclausule

Koop je de woning zonder voorbehoud van financiering? Dan zullen wij een termijn hanteren van 6 weken na het opstellen van de koopovereenkomst voor het storten van de bankgarantie/waarborgsom.
+ toon meer
deze woning is Verkocht

't Kofschip 15 Veenendaal

't Kofschip 15

3904 RM, Veenendaal
Ditters open huis: 5 april 2025 10:00 - 12:00 uur
Landelijke Open Huizen Route NVM: 5 april 2025 11:00 uur - 15:00 uur
Vanaf€ 550.000 k.k.

Schakel een aankoopmakelaar in.

Snel handelen helpt je jouw droomhuis te bemachtigen. Zo vergroot je de kans dat je er op tijd bij bent.
Veenendaal
verkocht

Of maak vrijblijvend een zoekprofiel aan.

Vergelijkbare woningen

Hypotheken

Onafhankelijk hypotheekadvies

  • Ligt jouw droomhuis binnen handbereik?
  • Wil je jouw huidige hypotheek verhogen?
  • Is er hypotheekruimte voor verduurzaming?

Blijf op de hoogte

Ontvang als eerste updates over nieuw aanbod en mis geen enkele kans om jouw droomwoning te vinden.

Gratis waardebepaling of verkoopgesprek

Met de vrijblijvende waardecheck weet je snel waar je aan toe bent. Onze makelaars kijken naar de lokale markt en vergelijkbare woningen in jouw buurt om een goede schatting te geven.

Realiseer al jouw woondromen met Ditters

Wij zijn een team van gedreven vastgoedexperts met een passie voor het maken van verbindingen – tussen kopers en verkopers, huurders en verhuurders. Met een frisse kijk op de makelaardij combineren we expertise met creativiteit. Onze makelaars luisteren écht en nemen de tijd om jouw wensen te begrijpen.


Bij Ditters sta je er niet alleen voor. We denken met je mee, begeleiden je in elke stap en zijn altijd bereikbaar voor vragen. Neem gerust contact met ons op – we helpen je graag verder!