Omschrijving

Ben jij op zoek naar een karakteristieke twee-onder-een-kapwoning met o.a. 4 slaapkamers, HR++ beglazingen een moderne en een recent vernieuwde badkamer met vloerverwarming (2023)? Wil jij graag wonen op loopafstand van het winkelcentrum met alle dagelijkse voorzieningen nabij?

Dan is deze unieke woning wellicht iets voor jou!

Belangrijke kenmerken:
- Energielabel D met HR++ beglazing
- Muur-/ vloer- en dakisolatie
- 4 slaapkamers
- Moderne badkamer uit 2023
- Schilderwerk in 2025 uitgevoerd

Indeling:
Begane grond:
Via de entree kom je direct binnen in de lichte woonkamer van 16,4 m². De sfeervolle erker zorgt voor een prettige lichtinval en biedt voldoende ruimte voor een comfortabele hoekbank en een gezellige zithoek. De open haard maakt deze ruimte extra aangenaam tijdens de koude wintermaanden.

Centraal in de woning bevindt zich het eetgedeelte, dat in open verbinding staat met de ruime keuken van 13 m². De keuken is uitgevoerd met zwarte kastfronten en een donker werkblad en is voorzien van diverse inbouwapparatuur, waaronder een gasfornuis, afzuigkap, magnetron, oven, koelkast en vaatwasser. Het toilet bevindt zich in een separate ruimte tegenover de keuken.

Aan de achterzijde van de woning zijn nog twee losse, praktische opbergkasten aanwezig en geven openslaande tuindeuren direct toegang tot de tuin.

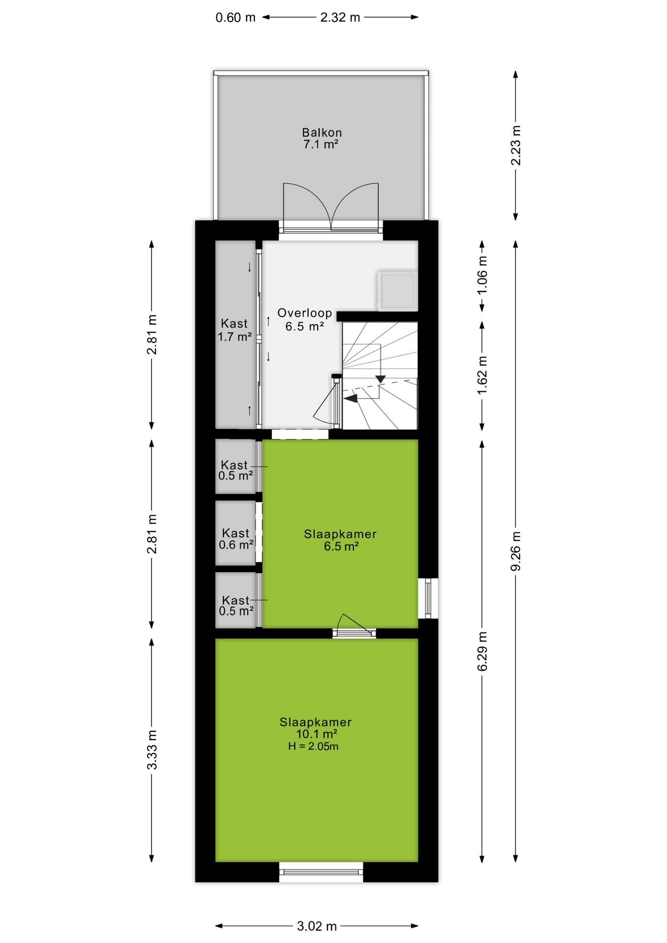
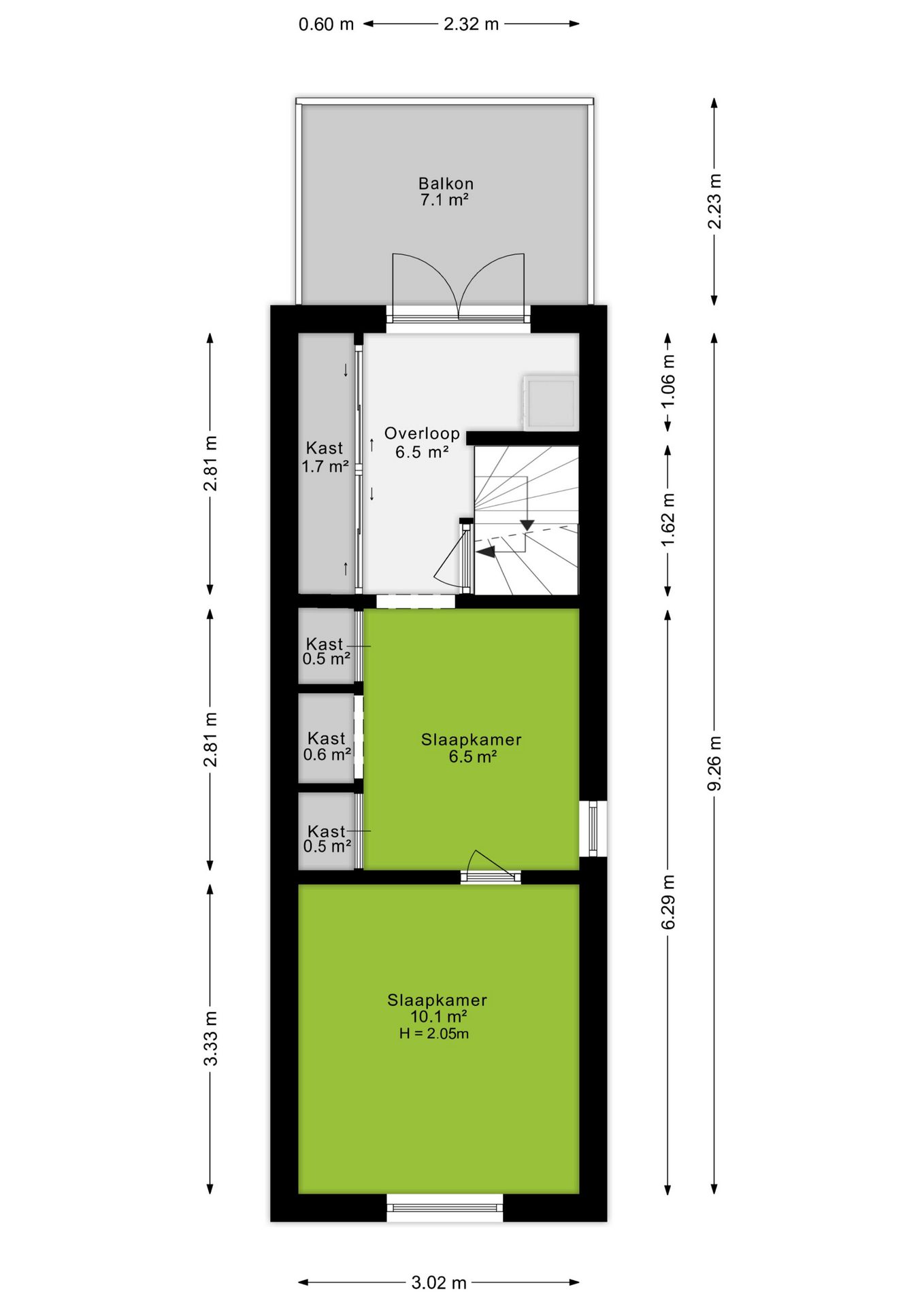
Eerste verdieping:
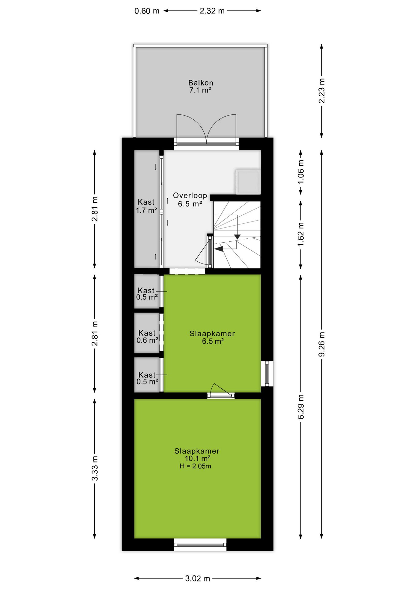
Door middel van de vaste trap kom je op de overloop, hier bevinden zich de aansluitingen voor wasmachine en droger en een handige inbouwkast. Vanuit de overloop is tevens het balkon van 7,1 m² bereikbaar, dit is een ruime zitplek waar je heerlijk op een beschut plekje kan genieten van het buitenleven.

De verdieping beschikt over een slaapkamer van 6,5 m² met een ingebouwde kastenwand. Vanuit deze kamer is de tweede slaapkamer van 10,1 m² bereikbaar. Beide slaapkamers genieten van een prettige lichtinval.

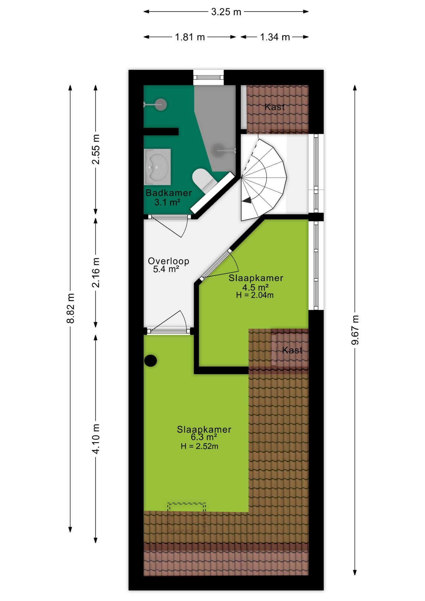
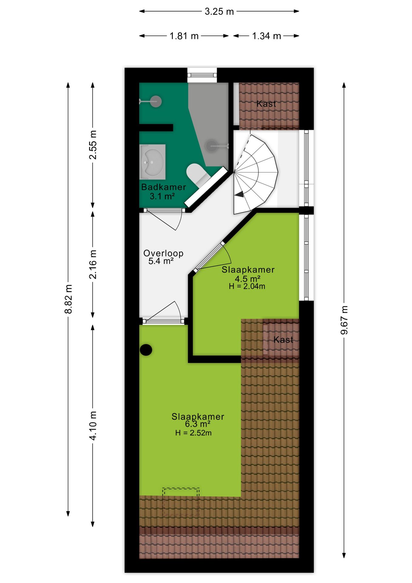
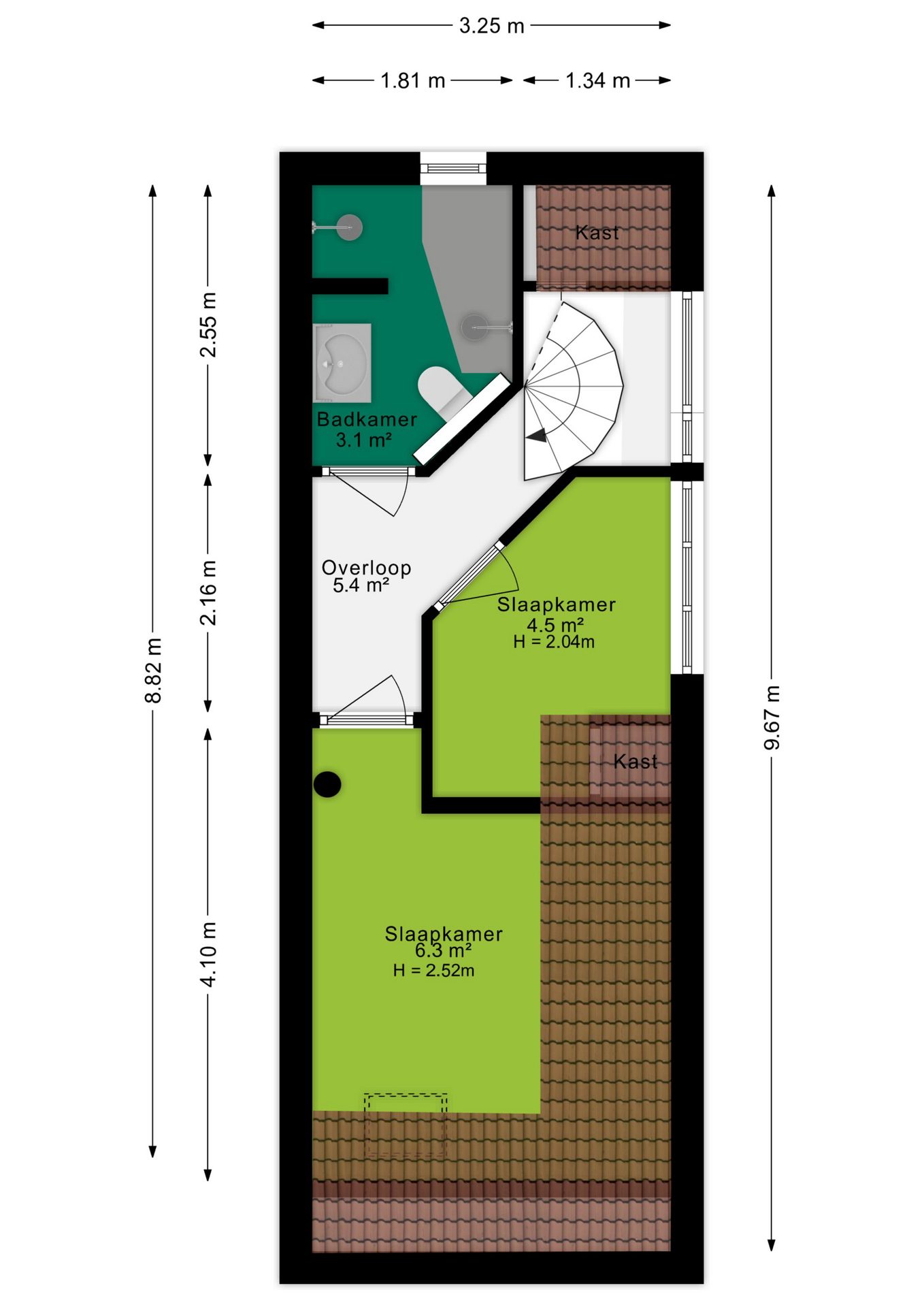
Tweede verdieping:
Via een vaste trap bereik je de tweede verdieping, waar zich nog twee slaapkamers bevinden van respectievelijk 4,5 m² en 6,3 m². De kleinste kamer is voorzien van een dakkapel (vernieuwd in 2023), terwijl de grotere kamer beschikt over een dakraam. Daarnaast bevindt zich op deze verdieping een in 2023 vernieuwde/gemoderniseerde badkamer van 3,1 m², die is voorzien van elektrische vloerverwarming en uitgevoerd in een speelse kleurstelling. De badkamer beschikt over een wastafelmeubel, inloopdouche, ligbad en toilet, wat zorgt voor optimaal comfort.

Buitenruimte:
De zonnige achtertuinen zijn gelegen op het zuidwesten en bieden volop ruimte voor een gezellige loungehoek en een speelplek voor kinderen. Tevens is er een houten berging van 6,1 m², ideaal voor fietsen en tuingereedschap. De tuin is bovendien via de zijkant van de woning bereikbaar, wat extra praktisch is. Een gedeelte van de tuin is bereikbaar via het naastgelegen perceel, met een vastgelegd recht van overpad.

Bijzonderheden:
- Bouwjaar 1905
- Woonoppervlakte 83 m²
- Verwarming en warm water middels een CV-ketel ATAG (2010)
- Isolatie: dak-/ muur- en vloersiolatie en HR-++ glas
- Energielabel: D
- Tuinligging: zuidwest
- Aanvaarding in overleg

Koopovereenkomst:
Bij de verkoop zal er een standaard NVM koopovereenkomst worden gehanteerd.
Bij woningen welke ouder zijn dan 20 jaar, worden de volgende clausules opgenomen in de koopovereenkomst:
- Asbestclausule;
- Ouderdomsclausule.

Koop je de woning zonder voorbehoud van financiering? Dan zullen wij een termijn hanteren van 6 weken na het opstellen van de koopovereenkomst voor het storten van de bankgarantie/waarborgsom.

Deze informatie is door ons met de nodige zorgvuldigheid samengesteld. Onzerzijds wordt echter geen enkele aansprakelijkheid aanvaard voor enige onvolledigheid, onjuistheid of anderszins, dan wel de gevolgen daarvan. Alle opgegeven maten en oppervlakten zijn indicatief.
+ toon meer
deze woning is Verkocht

Valleistraat 4 Veenendaal

Valleistraat 4

3901 RT, Veenendaal
Ditters open huis: 5 april 2025 10:00 - 12:00 uur
Landelijke Open Huizen Route NVM: 5 april 2025 11:00 uur - 15:00 uur
Vanaf€ 389.000 k.k.

Schakel een aankoopmakelaar in.

Snel handelen helpt je jouw droomhuis te bemachtigen. Zo vergroot je de kans dat je er op tijd bij bent.
Veenendaal
verkocht

Of maak vrijblijvend een zoekprofiel aan.

Vergelijkbare woningen

Hypotheken

Onafhankelijk hypotheekadvies

  • Ligt jouw droomhuis binnen handbereik?
  • Wil je jouw huidige hypotheek verhogen?
  • Is er hypotheekruimte voor verduurzaming?

Blijf op de hoogte

Ontvang als eerste updates over nieuw aanbod en mis geen enkele kans om jouw droomwoning te vinden.

Gratis waardebepaling of verkoopgesprek

Met de vrijblijvende waardecheck weet je snel waar je aan toe bent. Onze makelaars kijken naar de lokale markt en vergelijkbare woningen in jouw buurt om een goede schatting te geven.

Realiseer al jouw woondromen met Ditters

Wij zijn een team van gedreven vastgoedexperts met een passie voor het maken van verbindingen – tussen kopers en verkopers, huurders en verhuurders. Met een frisse kijk op de makelaardij combineren we expertise met creativiteit. Onze makelaars luisteren écht en nemen de tijd om jouw wensen te begrijpen.


Bij Ditters sta je er niet alleen voor. We denken met je mee, begeleiden je in elke stap en zijn altijd bereikbaar voor vragen. Neem gerust contact met ons op – we helpen je graag verder!