Royale twee-onder-één-kapwoning aan de Varenmos 35 in Veenendaal – een oase van ruimte, mogelijkheden, comfort en duurzaamheid
In de geliefde wijk Petenbos, op loopafstand van de prachtige bossen van de Utrechtse Heuvelrug, staat deze royale en moderne twee-onder-één-kapwoning te koop. Deze woning, gebouwd in 1995, heeft alles wat je je maar kunt wensen: een woonoppervlakte van maar liefst 184 m², een prachtige tuin op het zonnige zuidoosten, vijf ruime slaapkamers, twee badkamers, en duurzame voorzieningen zoals een hybride warmtepomp en 21 zonnepanelen, energielabel A++.
Ligging:
De woning is ideaal gelegen in een rustige en kindvriendelijke buurt. Op loopafstand vind je de bossen van de Utrechtse Heuvelrug, waar je heerlijk kunt wandelen of fietsen. Daarnaast zijn er diverse scholen (basis- en middelbaar onderwijs), winkels en sportvoorzieningen in de buurt. Via de nabijgelegen uitvalswegen naar de A12 en de A15 ben je ook snel onderweg naar andere steden. Ook de bushalte en het station zijn dichtbij.
Indeling en sfeer:
Bij binnenkomst ervaar je direct de ruimtelijkheid en strakke afwerking. De royale woonkamer van maar liefst 56 m² is tuingericht en dankzij de grote schuifpui geniet je volop van het daglicht en de groene achtertuin. Een sfeervolle houtkachel biedt, indien gewenst, extra warmte en gezelligheid op koude dagen. De woonkamer is uitgebouwd en voorzien van een fraai houten balkenplafond en veel glas rondom, wat de ruimte bijna doet aanvoelen als een tuinkamer.
De keuken biedt voldoende ruimte voor een gezellige eethoek. De halfopen keuken aan de voorzijde is praktisch en luxe uitgevoerd in een hoekopstelling met houten fronten- en RVS-accenten. De keuken is voorzien van goede inbouwapparatuur, zoals een keramische kookplaat, een vaatwasser, een oven-magnetroncombinatie en een afzuigkap.
Op de begane grond vind je ook een moderne toiletruimte (gerenoveerd in 2020) en een handige bijkeuken, gecreëerd in het achterste deel van de garage. Deze bijkeuken biedt extra opslag- en werkruimte. De garage biedt mogelijkheden om een eigen werkkamer te creëren.
Ruimte en comfort op de verdiepingen:
Eerste verdieping:
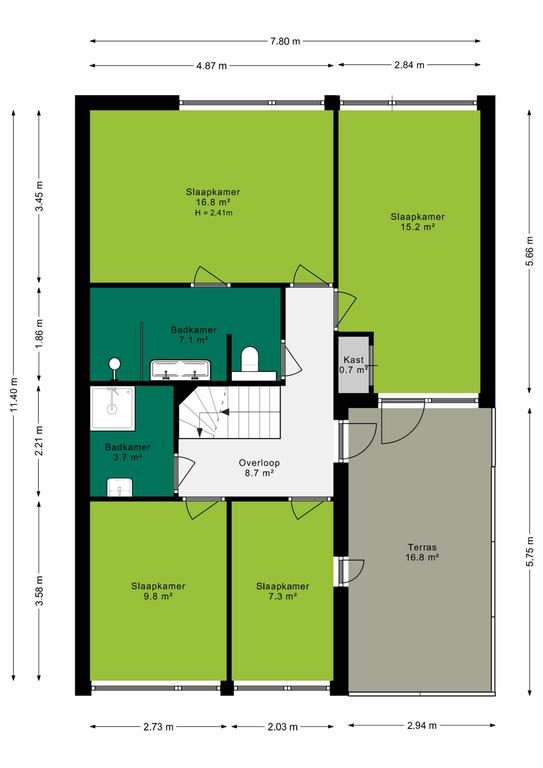
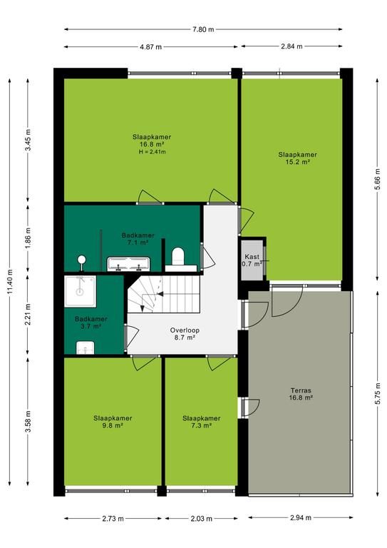
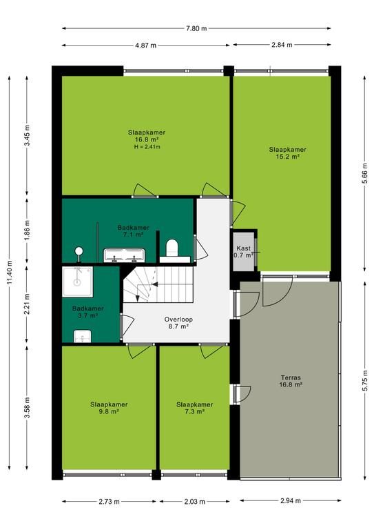
Via de vaste trap kom je bij de ruime eerste verdieping. De eerste verdieping biedt maar liefst vier royale slaapkamers, allen voorzien van een fraaie houten parketvloer. Eén van de slaapkamers geeft toegang tot een riant dakterras van 17 m², ideaal om bijv. rustig van de zon te genieten. Het dakterras is ook toegankelijk via de overloop.
Op deze verdieping bevinden zich tevens twee badkamers. De grootste badkamer is in 2020 volledig gerenoveerd en voorzien van luxe afwerkingen: een grote inloopdouche met regendouche, een dubbele wastafel met bergmeubel, een spiegelkast en een tweede toilet. De tweede badkamer is eveneens netjes afgewerkt en beschikt over een douchecabine en een wastafel – perfect voor gasten, logees of kinderen.
Tweede verdieping:
De tweede verdieping, bereikbaar via een vaste trap, biedt een ruime voorzolder met witgoedaansluitingen, de cv-installatie, een hybride warmtepomp en de omvormer voor de zonnepanelen. Daarnaast is hier een vijfde slaapkamer gecreëerd met een dakkapel (voorzien van rolluiken), waardoor het een ideale werk-, hobby- of logeerkamer is.
Buitenleven:
De woning is gelegen op een royale kavel van 308 m² met een fraai aangelegde, zonnige tuin op het zuidoosten. De tuin is ontworpen/aangelegd door een hovenier en biedt meerdere terrassen, mooie groenstroken en veel privacy. Het is een heerlijke plek om te ontspannen of om met vrienden en familie te genieten van een barbecue. Op eigen terrein is er bovendien plek voor twee auto’s, mede dankzij de ruime oprit en de elektrische garagedeur. Ook is er in de aanleg van een drie fasen laadpaal voorzien.
Duurzaamheid en energiezuinigheid:
Met een energielabel A++ is deze woning een duurzame keuze. De woning is volledig geïsoleerd en voorzien van HR++-glas, vloerisolatie en vloerwarming (gedeeltelijk), een hybride warmtepomp (uit 2022), en 21 zonnepanelen. Ook de meterkast is geüpgraded met een driefase-aansluiting, zodat het opladen van een elektrische auto probleemloos thuis kan worden gedaan.
Samengevat
• Royale woonoppervlakte van 184 m²
• Vijf ruime slaapkamers
• Twee badkamers, waarvan één luxe gerenoveerd in 2020
• Uitgebouwde woonkamer van 56 m² met een schuifpui naar de tuin
• Zonnige tuin op het zuidoosten, fraai aangelegd door een hovenier
• Moderne en goed uitgeruste keuken met hoogwaardige inbouwapparatuur
• Volledig geïsoleerd en voorzien van HR++- beglazing energielabel A++
• Hybride warmtepomp, vloerwarming, 21 zonnepanelen en een driefase-aansluiting
• Garage met elektrische deur en parkeergelegenheid voor twee auto’s
• Rustige ligging in de wijk Petenbos, dicht bij scholen, winkels en natuur
Deze woning biedt alle ruimte en mogelijkheden die je zoekt – ideaal voor een groot gezin, voor een eigen werkplek of voor mensen die gewoon van luxe en comfort houden.
Interesse? Neem snel contact met ons op voor een bezichtiging!
Koopovereenkomst:
Bij de verkoop zal er een standaard NVM koopovereenkomst worden gehanteerd. Bij woningen welke ouder zijn dan 20 jaar, worden de volgende clausules opgenomen in de koopovereenkomst:
- Asbestclausule;
- Ouderdomsclausule.
Koop je de woning zonder voorbehoud van financiering? Dan zullen wij een termijn hanteren van 14 dagen na het opstellen van de koopovereenkomst voor het storten van de bankgarantie/waarborgsom.
Deze informatie is door ons met de nodige zorgvuldigheid samengesteld. Onzerzijds wordt echter geen enkele aansprakelijkheid aanvaard voor enige onvolledigheid, onjuistheid of anderszins, dan wel de gevolgen daarvan. Alle opgegeven maten en oppervlakten zijn indicatief.