Omschrijving

In een rustige en kindvriendelijke wijk van Wageningen ligt deze verzorgde eindwoning uit 2003 met energielabel A. De woning beschikt over drie slaapkamers (met mogelijkheid tot een vierde), een ruim balkon op de tweede verdieping, een tuin met veranda en een grote stenen berging. Dankzij vloerverwarming op de begane grond, airconditioning en praktische indeling is dit een comfortabele woning voor een breed publiek.

De woning is gelegen op een aantrekkelijke en groene locatie. Op korte loopafstand, binnen 10 minuten, bevindt zich een klompenpad en in de wijk zijn diverse speeltuintjes aanwezig. Wageningen Universiteit is binnen 10 minuten fietsen bereikbaar en ook het centrum van Wageningen, met een uitgebreid aanbod aan winkels, horeca en overige voorzieningen, bevindt zich op circa 15 minuten fietsafstand.

Belangrijkste kenmerken op een rij:
+ Eindwoning met drie slaapkamers, met mogelijkheid tot het realiseren van een vierde slaapkamer
+ Vloerverwarming op de begane grond
+ Ramen voorzien van elektrische screens en/of rolluiken
+ Airconditioning aanwezig op de bovenverdieping
+ Groot, zonnig balkon op het zuiden gelegen op de tweede verdieping
+ Fraai aangelegde tuin met veranda en royale stenen berging
+ Energielabel A
+ Buitenkozijnen recent geschilderd (2025)

Indeling
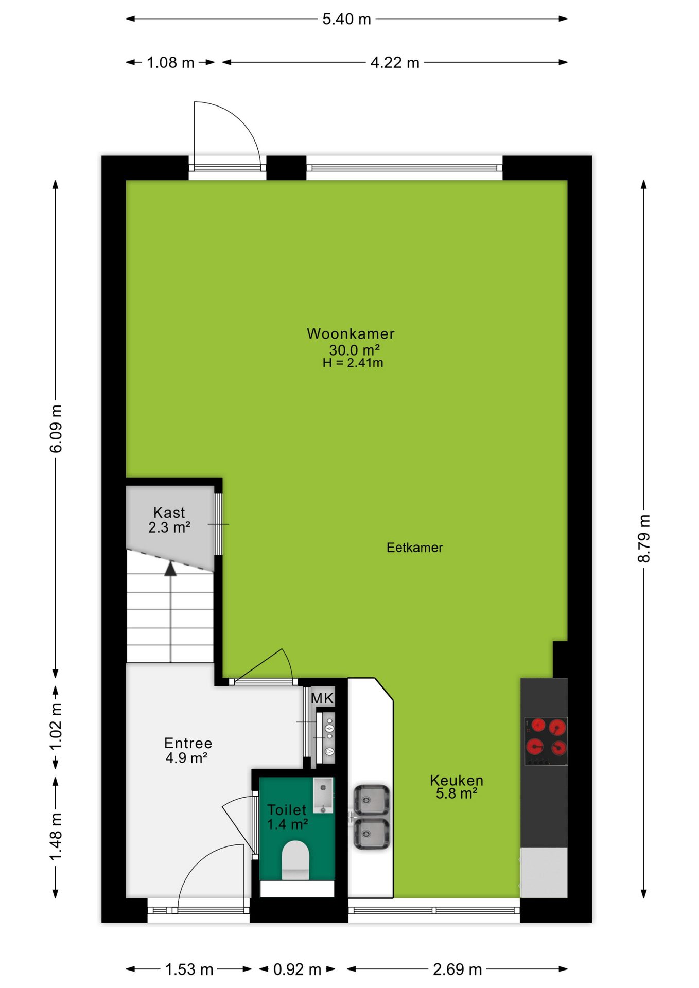
Begane grond
Via de ruime hal heb je toegang tot de meterkast, het toilet en de trapopgang naar de eerste verdieping. In de leefruimte aangekomen valt direct het vele daglicht op. De ruimte biedt voldoende mogelijkheden voor het creëren van zowel een comfortabele zithoek als een gezellige eethoek.
De open keuken zorgt tijdens het koken voor fijn contact met de leefruimte en is compleet uitgevoerd met een inductiekookplaat, afzuigkap, magnetron, combi-oven en vaatwasser.

Daarnaast is er een praktische trapkast aanwezig, ideaal voor het opbergen van voorraad en huishoudelijke spullen. De gehele begane grond is voorzien van vloerverwarming, wat zorgt voor een aangenaam wooncomfort.
De ramen aan zowel de voor- als achterzijde zijn uitgerust met elektrische screens, waardoor je ook op warme dagen comfortabel woont.

Eerste verdieping
Op de eerste verdieping bevinden zich drie slaapkamers van circa 13 m², 9 m² en 8 m². De slaapkamer aan de voorzijde is voorzien van een vaste inbouwkast en een rolluik. De slaapkamers aan de achterzijde beschikken eveneens over een rolluik.
De badkamer van circa 6 m² is compleet uitgevoerd met een ligbad, douche, wastafel met meubel, kolomkast, toilet en designradiator.

Tweede verdieping
In het trappengat richting de tweede verdieping hangt de airconditioning. Boven aangekomen valt direct het royale balkon van circa 15 m² op, gelegen op het zuiden, een heerlijke plek om buiten te zitten. De ramen zijn voorzien van elektrische screens.
Op deze verdieping bevinden zich tevens de wasmachineaansluiting en een vaste kastenwand. Daarnaast biedt deze verdieping de mogelijkheid om een vierde slaapkamer te realiseren.

Buitenruimte
De achtertuin is gelegen op het noordoosten en is bereikbaar via een achterom. Een groot pluspunt is de stenen berging van circa 17 m², die niet alleen geschikt is voor opslag, maar ook uitstekend kan dienen als hobbyruimte.
Aan de berging grenst een veranda, waardoor je altijd beschut buiten kunt zitten ongeacht het seizoen.

Koopovereenkomst
Bij de verkoop zal een standaard NVM-koopovereenkomst worden gehanteerd.
Bij woningen ouder dan 20 jaar worden de volgende clausules opgenomen:
- Ouderdomsclausule
- Asbestclausule

Deze informatie is met zorg samengesteld. Er wordt geen aansprakelijkheid aanvaard voor eventuele onjuistheden of onvolledigheden. Alle opgegeven maten en oppervlakten zijn indicatief.
+ toon meer
deze woning is Verkocht

Pad van Arendsoog 2 Wageningen

Pad van Arendsoog 2

6708 TR, Wageningen
Ditters open huis: 5 april 2025 10:00 - 12:00 uur
Landelijke Open Huizen Route NVM: 5 april 2025 11:00 uur - 15:00 uur
Vanaf€ 539.500 k.k.

Schakel een aankoopmakelaar in.

Snel handelen helpt je jouw droomhuis te bemachtigen. Zo vergroot je de kans dat je er op tijd bij bent.
Wageningen
verkocht

Of maak vrijblijvend een zoekprofiel aan.

Vergelijkbare woningen

Hypotheken

Onafhankelijk hypotheekadvies

  • Ligt jouw droomhuis binnen handbereik?
  • Wil je jouw huidige hypotheek verhogen?
  • Is er hypotheekruimte voor verduurzaming?

Blijf op de hoogte

Ontvang als eerste updates over nieuw aanbod en mis geen enkele kans om jouw droomwoning te vinden.

Gratis waardebepaling of verkoopgesprek

Met de vrijblijvende waardecheck weet je snel waar je aan toe bent. Onze makelaars kijken naar de lokale markt en vergelijkbare woningen in jouw buurt om een goede schatting te geven.

Realiseer al jouw woondromen met Ditters

Wij zijn een team van gedreven vastgoedexperts met een passie voor het maken van verbindingen – tussen kopers en verkopers, huurders en verhuurders. Met een frisse kijk op de makelaardij combineren we expertise met creativiteit. Onze makelaars luisteren écht en nemen de tijd om jouw wensen te begrijpen.


Bij Ditters sta je er niet alleen voor. We denken met je mee, begeleiden je in elke stap en zijn altijd bereikbaar voor vragen. Neem gerust contact met ons op – we helpen je graag verder!