Omschrijving

Gelegen in de kindvriendelijke en geliefde wijk 'Schuytgraaf' staat deze moderne tussenwoning uit 2017 met een woonoppervlakte van 134m²! De woning combineert luxe met comfort en biedt tal van mogelijkheden; zo beschikt het huis over een uitbouw, een stijlvolle open keuken, drie ruime slaapkamers (uitbreid baar naar vier of vijf slaapkamers), een moderne badkamer en een fraai aangelegde tuin met overkapping. Bovendien heeft deze energiezuinige woning een energielabel A. Kortom, een ideale woning voor iedereen die op zoek is naar zorgeloos en luxe wonen!

De woning is ingericht met hoogwaardige afwerking en heeft een lichte, ruime woonkamer en een open keuken die van alle moderne gemakken is voorzien, zoals een kookeiland en kwalitatieve inbouwapparatuur. Dankzij de grote raampartijen geniet je van veel natuurlijk lichtinval. De achtertuin, gelegen op het zonnige zuidwesten, is een heerlijke plek om te ontspannen. Daarnaast zorgt de praktische overkapping ervoor dat je ook in de schaduw of tijdens een zomerse regenbui van buiten kunt genieten. Hier vind je ook een vrijstaande berging en een achterom.

Daarnaast beschikt de woning over allerlei luxe accenten die je zeker zullen bevallen: een ruime en lichte woonkamer, een open luxe keuken met inbouwapparatuur, 3 slaapkamers, een moderne badkamer en een fraai aangelegde tuin (met overkapping). Dit huis biedt een gevoel van luxe en is voorzien van energielabel A.

Schuytgraaf ligt op korte afstand van de bruisende binnenstad en beschikt over diverse voorzieningen, zoals: meerdere basisscholen, een internationale school, sportcomplexen, horecagelegenheden en supermarkten. Tevens door het openbare vervoer (station Arnhem-Zuid) en de uitvalswegen A50 en A325 is de woning ideaal gelegen. Verder is de woning gelegen binnen een rustige straat en zijn er diverse speelplekjes en groenstroken in de nabije omgeving.

Alle feiten op een rij:
- Moderne instapklare woning met 134m² woonoppervlakte
- Gelegen in de geliefde wijk Schuytgraaf
- Moderne open keuken met inbouwapparatuur
- Gelegen nabij diverse voorzieningen
- Drie ruime slaapkamers met mogelijkheden voor vier of vijf slaapkamers.
- Energielabel A, volledig geïsoleerd
- Nette tuin met overkapping
- Dicht bij voorzieningen, zoals scholen, sportcomplexen en openbaar vervoer

Indeling
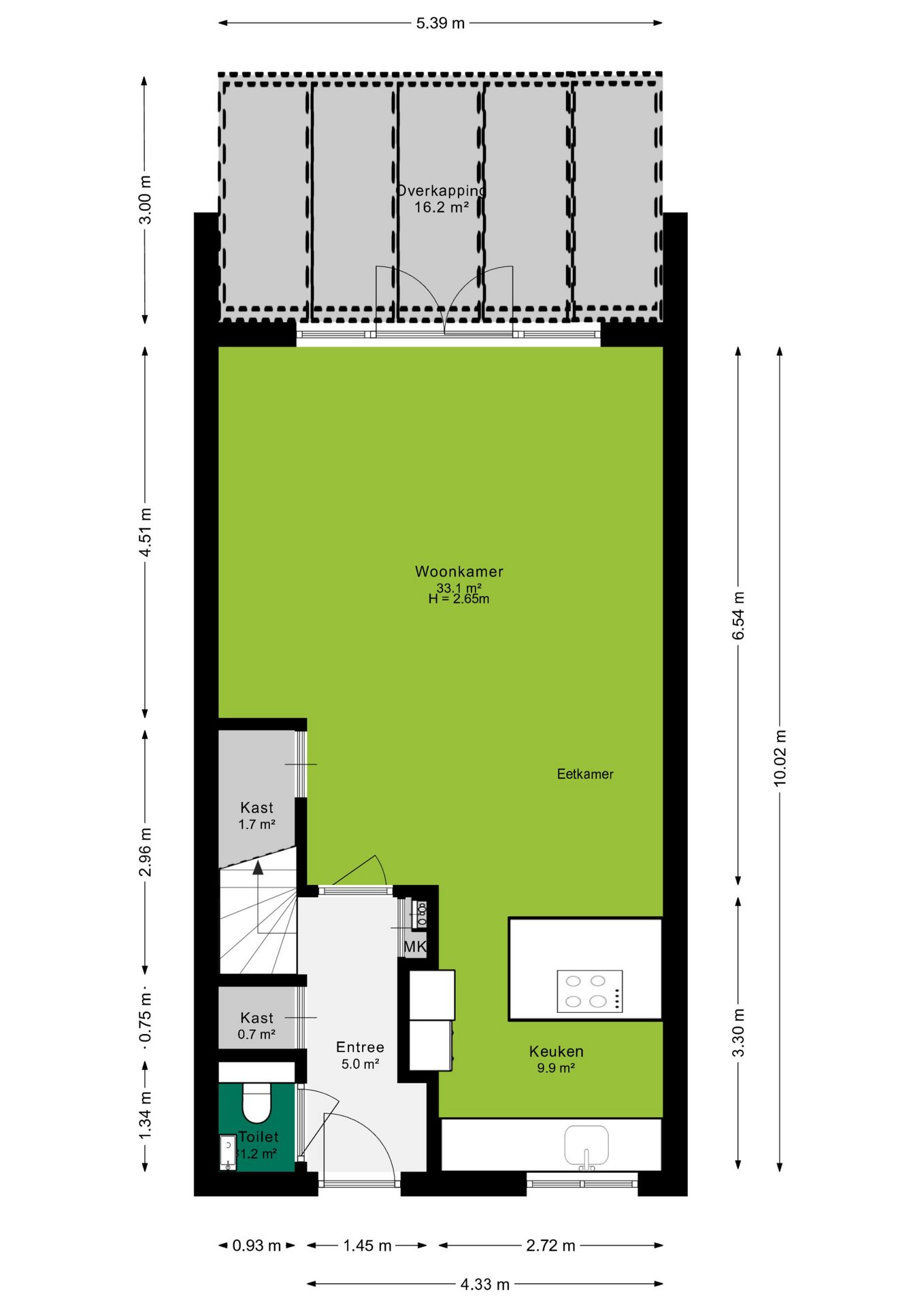
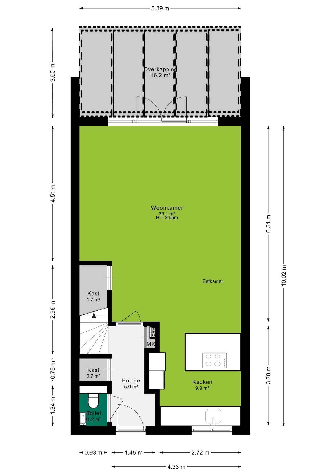
Begane grond
Via de entree met hal, toilet en meterkast bereik je de woning. De ruime woonkamer van 33m² is een lichte en sfeervolle leefruimte dankzij de grote raampartijen en de strakke gietvloer. Via de openslaande deuren stap je zo de prachtig aangelegde achtertuin in. Aan de voorzijde bevindt zich de open keuken, uitgevoerd in een moderne kleurstelling en voorzien van een kookeiland en luxe inbouwapparatuur, zoals een kookplaat, afzuigkap, oven, vaatwasser en een koel-vriescombinatie.

Eerste verdieping:
De overloop geeft toegang tot twee royale slaapkamers van circa 19m² en 13m², beide uitgevoerd met een nette laminaatvloer en grote ramen voor veel daglicht, daarnaast is de grote slaapkamer voorzien van rolluiken. De badkamer is uitgevoerd in een lichte en moderne kleurstelling straalt deze ruimte rust en frisheid uit. Hier vind je een ruime inloopdouche, een strak vormgegeven toilet en een stijlvol wastafelmeubel met daarboven handige opbergruimte. Dankzij de praktische indeling biedt de badkamer alles wat je nodig hebt voor een ontspannen start of afsluiting van je dag!

Tweede verdieping:
Via de vaste trap bereik je de tweede verdieping, waar zich de derde slaapkamer bevindt. Deze slaapkamer, van circa 19m², is opnieuw ruim en licht dankzij het dakraam en heeft een mooie laminaatvloer. Tevens biedt deze etage ruimte voor extra slaapkamers of een werk-/hobbykamer.

De heerlijke zonnige achtertuin is gelegen op het zuidwesten, en voorzien van een mooie overkapping. Hier kun je genieten van de zon in de middag en de avond. Met leuke beplanting en een fijn terras kan je hier heerlijk van het buitenleven genieten. Daarnaast is er nog een praktische vrijstaande berging aanwezig en een achterom.

Kenmerken:
Verwarming: stadsverwarming
isolatie: volledig geïsoleerd
Bouwjaar:2017
Tuinligging: Westen
Aanvaarding: in overleg

Koopt u de woning zonder voorbehoud van financiering? Dan zullen wij een termijn hanteren van 14 dagen na het opstellen van de koopovereenkomst voor het storten van de bankgarantie/waarborgsom.

Deze informatie is door ons met de nodige zorgvuldigheid samengesteld. Onzerzijds wordt echter geen enkele aansprakelijkheid aanvaard voor enige onvolledigheid, onjuistheid of anderszins, dan wel de gevolgen daarvan. Alle opgegeven maten en oppervlakten zijn indicatief.
+ toon meer
deze woning is Verkocht

Herfsttooi 27 Arnhem

Herfsttooi 27

6846 DS, Arnhem
Ditters open huis: 5 april 2025 10:00 - 12:00 uur
Landelijke Open Huizen Route NVM: 5 april 2025 11:00 uur - 15:00 uur
Vanaf€ 539.000 k.k.

Schakel een aankoopmakelaar in.

Snel handelen helpt je jouw droomhuis te bemachtigen. Zo vergroot je de kans dat je er op tijd bij bent.
Arnhem
verkocht

Of maak vrijblijvend een zoekprofiel aan.

Vergelijkbare woningen

Hypotheken

Onafhankelijk hypotheekadvies

  • Ligt jouw droomhuis binnen handbereik?
  • Wil je jouw huidige hypotheek verhogen?
  • Is er hypotheekruimte voor verduurzaming?

Blijf op de hoogte

Ontvang als eerste updates over nieuw aanbod en mis geen enkele kans om jouw droomwoning te vinden.

Gratis waardebepaling of verkoopgesprek

Met de vrijblijvende waardecheck weet je snel waar je aan toe bent. Onze makelaars kijken naar de lokale markt en vergelijkbare woningen in jouw buurt om een goede schatting te geven.

Realiseer al jouw woondromen met Ditters

Wij zijn een team van gedreven vastgoedexperts met een passie voor het maken van verbindingen – tussen kopers en verkopers, huurders en verhuurders. Met een frisse kijk op de makelaardij combineren we expertise met creativiteit. Onze makelaars luisteren écht en nemen de tijd om jouw wensen te begrijpen.


Bij Ditters sta je er niet alleen voor. We denken met je mee, begeleiden je in elke stap en zijn altijd bereikbaar voor vragen. Neem gerust contact met ons op – we helpen je graag verder!