Omschrijving

Wonen in De Dubbelhof – wooncomfort met verrassend veel ruimte, binnen én buiten!

Ben je op zoek naar het comfort van een appartement, maar met de ruimte van een eengezinswoning?
Dan is deze royale maisonnette aan de Dubbelhof 63 in Ede precies wat je zoekt. Met een woonoppervlakte van maar liefst 115 m², vier volwaardige kamers, een tuin van circa 25 m² én twee balkons, combineert deze woning op de begane grond het beste van twee werelden: comfort, leefruimte en een fijne buitenbeleving.

Ligging en omgeving
Deze woning is gelegen in een groene, kindvriendelijke wijk aan de noordwestzijde van Ede. Een rustige en prettige woonomgeving, waar je toch alle voorzieningen dichtbij hebt. Supermarkten, basisscholen, sportfaciliteiten en speelgelegenheden liggen op loop- of fietsafstand. Bovendien sta je binnen enkele minuten midden in de natuur — perfect voor een wandeling of fietstocht.

De bereikbaarheid is uitstekend: zowel met de auto als met het openbaar vervoer ben je zo in het centrum van Ede of een van de omliggende steden.

Een goed verzorgd complex
De woning maakt deel uit van een complex waarvan de appartementen op termijn worden verkocht. De Vereniging van Eigenaren (VvE) is recent opgericht en wordt professioneel beheerd. Het gebouw krijgt binnenkort een opfrisbeurt, waarbij onder andere de entreehal en trappenhuizen opnieuw worden geschilderd. Daarnaast wordt op dit moment de dakbedekking volledig vernieuwd én extra geïsoleerd, wat bijdraagt aan een energiezuinig en comfortabel binnenklimaat. De woning is voorzien van dubbele beglazing en wordt verwarmd via een centrale blokverwarming.

Ruimte, licht en comfort
Ontdek dit lichte en ruime appartement op de begane grond van het complex. Met een woonoppervlakte van 115 m² biedt het volop ruimte voor een gezin, thuiswerkers of iedereen die net wat meer leefruimte zoekt. De grote raampartijen zorgen voor een prettige lichtinval in alle vertrekken.

Daarnaast beschikt de woning over een fraaie en zonnige tuin van circa 25 m² én twee balkons, waardoor je op elk moment van de dag van zon of schaduw kunt genieten.

Waarom kiezen voor Dubbelhof 63?
- Woonoppervlakte van 115 m²;
- Vier slaapkamers;
- Ruime tuin én twee balkons;
- Lichte leefruimtes met veel privacy;
- Rustige en groene ligging nabij voorzieningen;
- Professioneel beheerde VvE, vernieuwd dak.

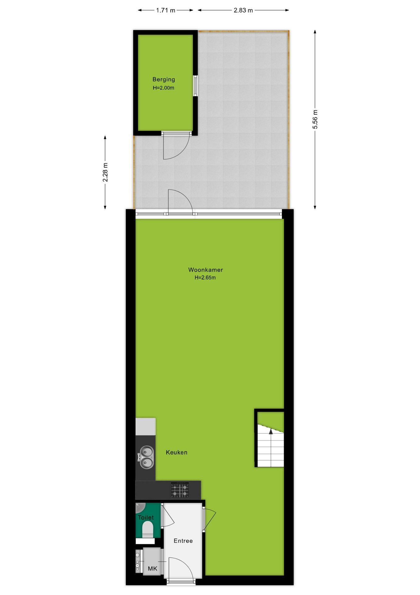
Indeling van de woning:
Deze maisonnette is gelegen op de begane grond en biedt een verrassend ruime en praktische indeling.

Begane grond
Je betreedt de woning via een centrale, afgesloten hal in het complex. In de hal van het appartement vind je de toegang tot de meterkast, toiletruimte en de overige vertrekken op deze verdieping.

De lichte en ruime woonkamer is gesitueerd aan de westzijde en beschikt over grote raampartijen die zorgen voor een prettige hoeveelheid daglicht. Vanuit de woonkamer heb je zicht op — én directe toegang tot — de tuin van circa 25 m², gelegen op het zuidwesten. Dankzij de ligging kun je hier een groot deel van de dag van de zon genieten: een heerlijke plek om te ontspannen na een lange (werk)dag.

De open keuken ligt centraal tussen de entree en de woonkamer. De keuken is praktisch ingericht en voorzien van een vierpits gasfornuis, afzuigkap, inbouwkoelkast met vriezer en een combi-oven/magnetron.

Eerste verdieping
Via de trap in de woonkamer bereik je de slaapverdieping. Hier bevinden zich vier slaapkamers, ideaal voor gezinnen, thuiswerkers of gasten:
- Twee slaapkamers van ca. 12 m², beide met toegang tot een eigen balkon
- Twee slaapkamers van ca. 8 m², geschikt als kinderkamer, werkkamer of hobbyruimte

Op deze verdieping bevindt zich een ruime centrale hal (ca. 9 m²) die toegang biedt tot de volledig betegelde badkamer. De badkamer is keurig afgewerkt en voorzien van een moderne wastafel, een nette douche en een tweede toilet. Daarnaast beschikt de hal over een praktische extra bergruimte.

Buitenruimte
Een van de grootste pluspunten van deze woning is de verrassend ruime tuin van bijna 25 m² — een echte zeldzaamheid bij een appartement! De tuin ligt op het zuidwesten, waardoor je hier het grootste deel van de dag heerlijk van de zon kunt genieten. Momenteel is de tuin volledig betegeld en voorzien van een praktisch schuurtje. De ruimte biedt echter volop mogelijkheden om geheel naar eigen smaak in te richten: creëer een groene oase, een onderhoudsvriendelijke patio of een sfeervolle buitenlounge. Dankzij de achterom is de tuin bovendien gemakkelijk bereikbaar en geniet je van extra gemak en privacy.

Berging
In het appartementengebouw heb je nog een eigen berging van circa 7 m² die je gemakkelijk van buitenaf kunt bereiken.

Bijdrage:
Voorschot stookkosten (inclusief kookgas) ca. : € 180,- per maand
Voorschot water: € 12,50 per maand
VvE bijdrage ca.: € 173,09 per maand

Er wordt gewerkt met een vaste notaris bij dit appartement, van Putten van Apeldoorn notarissen in Ede.

Koopovereenkomst:
Bij de verkoop zal er een standaard NVM koopovereenkomst worden gehanteerd. De volgende clausules worden onder andere opgenomen in de koopovereenkomst:
- Asbestclausule;
- Ouderdomsclausule;
- Niet bewoond clausule;
- As is where is clausule.

Koopt u de woning zonder voorbehoud van financiering? Dan zullen wij een termijn hanteren van 14 dagen na het opstellen van de koopovereenkomst voor het storten van de bankgarantie/waarborgsom.

Deze informatie is door ons met de nodige zorgvuldigheid samengesteld. Onzerzijds wordt echter geen enkele aansprakelijkheid aanvaard voor enige onvolledigheid, onjuistheid of anderszins, dan wel de gevolgen daarvan. Alle opgegeven maten en oppervlakten zijn indicatief.
+ toon meer
deze woning is Verkocht

Dubbelhof 63 Ede

Dubbelhof 63

6715 EG, Ede
Ditters open huis: 5 april 2025 10:00 - 12:00 uur
Landelijke Open Huizen Route NVM: 5 april 2025 11:00 uur - 15:00 uur
Vanaf€ 369.000 k.k.

Schakel een aankoopmakelaar in.

Snel handelen helpt je jouw droomhuis te bemachtigen. Zo vergroot je de kans dat je er op tijd bij bent.
Ede
verkocht

Of maak vrijblijvend een zoekprofiel aan.

Vergelijkbare woningen

Hypotheken

Onafhankelijk hypotheekadvies

  • Ligt jouw droomhuis binnen handbereik?
  • Wil je jouw huidige hypotheek verhogen?
  • Is er hypotheekruimte voor verduurzaming?

Blijf op de hoogte

Ontvang als eerste updates over nieuw aanbod en mis geen enkele kans om jouw droomwoning te vinden.

Gratis waardebepaling of verkoopgesprek

Met de vrijblijvende waardecheck weet je snel waar je aan toe bent. Onze makelaars kijken naar de lokale markt en vergelijkbare woningen in jouw buurt om een goede schatting te geven.

Realiseer al jouw woondromen met Ditters

Wij zijn een team van gedreven vastgoedexperts met een passie voor het maken van verbindingen – tussen kopers en verkopers, huurders en verhuurders. Met een frisse kijk op de makelaardij combineren we expertise met creativiteit. Onze makelaars luisteren écht en nemen de tijd om jouw wensen te begrijpen.


Bij Ditters sta je er niet alleen voor. We denken met je mee, begeleiden je in elke stap en zijn altijd bereikbaar voor vragen. Neem gerust contact met ons op – we helpen je graag verder!