Omschrijving

Goed onderhouden hoekwoning met luxe inbouwkeuken, complete en recent vernieuwde badkamer, achter aan de woning gebouwde overkapping en vrijstaande vergrote houten berging. De verzorgd aangelegde tuin is op het noordwesten gelegen. Er is voldoende parkeergelegenheid voor de woning.

Deze mooie, speelse woning is in de wijk 'De Bloemenbuurt' gesitueerd aan een rustige weg en gelegen in de directe nabijheid van winkelcentrum Het Rozenplein, scholen, het Proosdijpark met een kinderboerderij en speeltuinen.

Verder ben je in een mum van tijd in het gezellige centrum van Ede, zowel per auto als met de fiets. De uitvalswegen naar de A12, A15 en de A30 en verschillende NS-stations zijn gemakkelijk te bereiken.

Begane grond:
Via de entree kom je in de hal welke toegang geeft tot het moderne luxe toilet met fonteintje, meterkast en trapopgang naar de eerste verdieping. De tuingerichte woonkamer, met praktische trapkast, beschikt over sfeervol behang en een laminaatvloer. Centraal tussen de woonkamer en keuken bevindt zich het eetgedeelte. Hier is meer dan voldoende ruimte voor een grote eettafel met stoelen. Een fijne plek om met familie en/of vrienden te genieten van een hapje, drankje en spelletje! De open keuken is aan de voorzijde gelegen en is uitgerust met een luxe in hoekopstelling geplaatste inbouwkeuken met een koelkast, vaatwasser, combi-oven, inductiekookplaat en een (recirculatie) afzuigkap. Middels een aluminium schuifpui is de aangebouwde overkapping en de achtertuin bereikbaar.

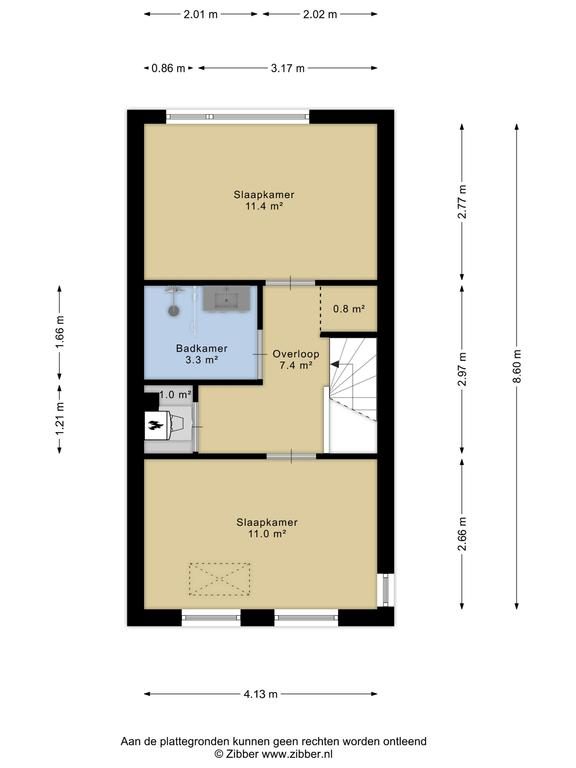
1e Verdieping:
Via de vaste trap kom je bij de overloop met toegang tot twee mooie slaapkamers, een vaste kast en CV kast met wasmachine- en drogeraansluiting en opstelling van de mechanische ventilatie. Beide slaapkamers zijn ruim bemeten. De ouderslaapkamer is aan de achterzijde en over de volle breedte van de woning gelegen. De slaapkamer aan de voorzijde beschikt over een luik met vlizotrap tot de praktische bergzolder. De gehele verdieping is voorzien van een laminaatvloer en behang wandafwerking. De recente volledig vernieuwde badkamer beschikt over een fraaie inloopdouche en een wastafelmeubel.

Tuin:
De fijne tuin is op het noordwesten gelegen met een direct aan de woning aangebouwde veranda om heerlijk in te vertoeven op warme of koele dagen.

Op elk moment van de dag is er een heerlijke plek te vinden is de rustige tuin.

Achterin de tuin staat een vrijstaande en vergrote berging, ideaal voor het opslaan van de fietsen of de spullen.

Afmetingen:
Woonkamer circa 26.5m²
Keuken circa 5.1m²
Slaapkamer 1 circa 11.4 m²
Slaapkamer 2 circa 11 m²
Badkamer circa 3.3 m²

Perceel oppervlakte 140 m²
Woonoppervlakte 71.0 m²

Bijzonderheden:
Verwarming en warmwater; Atag combiketel (2018)
Isolatie: Uitstekend geïsoleerd
Bouwjaar: 2000
Tuinligging: Noordwesten
Aanvaarding: In overleg

Extra’s:
- Keurig onderhouden woning;
- Luxe badkamer en toiletruimte;
- Luxe keuken voorzien van diverse inbouwapparatuur;
- Fijne tuingerichte woonkamer met schuifpui naar de achtertuin;
- Aangebouwde overkapping;
- Achtertuin met vergrote houten berging en zijuitgang naast de woning;
- Ideale woning voor starters op de woningmarkt.

Koopovereenkomst:
Bij de verkoop zal er een standaard NVM koopovereenkomst worden gehanteerd. Bij woningen welke ouder zijn dan 20 jaar, worden de volgende clausules opgenomen in de koopovereenkomst:
- Asbestclausule;
- Ouderdomsclausule.

Koop je de woning zonder voorbehoud van financiering? Dan zullen wij een termijn hanteren van 14 dagen na het opstellen van de koopovereenkomst voor het storten van de bankgarantie/waarborgsom.

Deze informatie is door ons met de nodige zorgvuldigheid samengesteld. Onzerzijds wordt echter geen enkele aansprakelijkheid aanvaard voor enige onvolledigheid, onjuistheid of anderszins, dan wel de gevolgen daarvan. Alle opgegeven maten en oppervlakten zijn indicatief.
+ toon meer
deze woning is Verkocht

Goudsbloemstraat 30 Ede

Goudsbloemstraat 30

6713 HD, Ede
Ditters open huis: 5 april 2025 10:00 - 12:00 uur
Landelijke Open Huizen Route NVM: 5 april 2025 11:00 uur - 15:00 uur
Vanaf€ 389.000 k.k.

Schakel een aankoopmakelaar in.

Snel handelen helpt je jouw droomhuis te bemachtigen. Zo vergroot je de kans dat je er op tijd bij bent.
Ede
verkocht

Of maak vrijblijvend een zoekprofiel aan.

Vergelijkbare woningen

Hypotheken

Onafhankelijk hypotheekadvies

  • Ligt jouw droomhuis binnen handbereik?
  • Wil je jouw huidige hypotheek verhogen?
  • Is er hypotheekruimte voor verduurzaming?

Blijf op de hoogte

Ontvang als eerste updates over nieuw aanbod en mis geen enkele kans om jouw droomwoning te vinden.

Gratis waardebepaling of verkoopgesprek

Met de vrijblijvende waardecheck weet je snel waar je aan toe bent. Onze makelaars kijken naar de lokale markt en vergelijkbare woningen in jouw buurt om een goede schatting te geven.

Realiseer al jouw woondromen met Ditters

Wij zijn een team van gedreven vastgoedexperts met een passie voor het maken van verbindingen – tussen kopers en verkopers, huurders en verhuurders. Met een frisse kijk op de makelaardij combineren we expertise met creativiteit. Onze makelaars luisteren écht en nemen de tijd om jouw wensen te begrijpen.


Bij Ditters sta je er niet alleen voor. We denken met je mee, begeleiden je in elke stap en zijn altijd bereikbaar voor vragen. Neem gerust contact met ons op – we helpen je graag verder!