Omschrijving

Deze ruime tussenwoning uit 1970 combineert licht, ruimte en een fijne ligging. Met een woonoppervlakte van 125 m², twee goed bemeten slaapkamers met optie voor een derde slaapkamer, een aparte zitkamer en een diepe tuin op het zuidwesten is dit een ideale gezinswoning. Dankzij de eigen oprit en de inpandige garage beschik je bovendien altijd over voldoende parkeergelegenheid .

Ligging
De woning ligt in een rustige en groene woonomgeving met alle voorzieningen binnen handbereik. In de directe omgeving bevinden zich het Proosdijpark, winkelcentrum Bellestein voor de dagelijkse boodschappen, en diverse scholen, sportvoorzieningen en openbaar vervoer. Via de tunnelverbinding bij de Rijksweg fiets je in enkele minuten naar winkelcentrum Parkweide. De Ginkelse Heide ligt op nog geen tien minuten afstand — ideaal voor een wandeling in de natuur. Dankzij de nabijheid van de A12 en A30 zijn ook omliggende steden uitstekend bereikbaar.

Pluspunten
+ Inpandige garage en parkeren op eigen terrein
+ Twee goed bemeten slaapkamers (optie tot drie slaapkamers)
+ Twee woonkamers (woonkamer en aparte zitkamer)
+ Diepe tuin op het zuidwesten
+ Voor- en achter vrij gelegen

Indeling
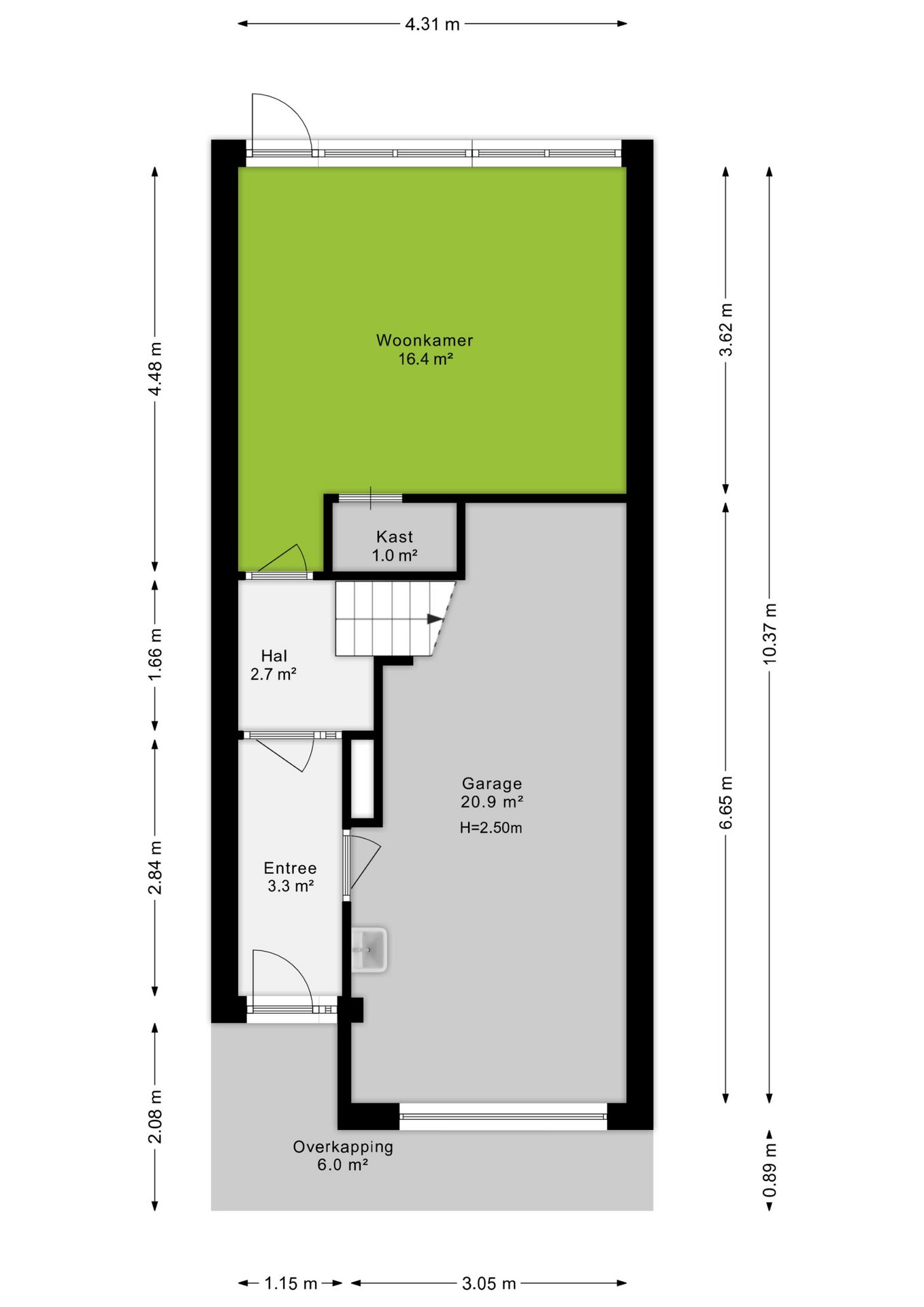
Begane grond
Bij binnenkomst via de entree betreed je een hal met toegang tot de garage. Vervolg je je route naar de achterzijde van de woning, dan kom je uit in een lichte woonkamer met grote ramen en uitzicht op de tuin. Deze ruimte is flexibel in te delen en heeft bovendien een directe doorgang naar het terras.

Eerste verdieping
Via de overloop bereik je zowel een separaat toilet als de tweede leefruimte, een ruime zitkamer met een groot raam dat uitzicht biedt over de tuin. Aan de voorzijde van de verdieping bevindt zich de keuken, waarin genoeg ruimte is voor een gezellige eethoek. Deze verdieping biedt dan ook volop mogelijkheden om de ruimtes geheel naar je eigen wensen in te richten.

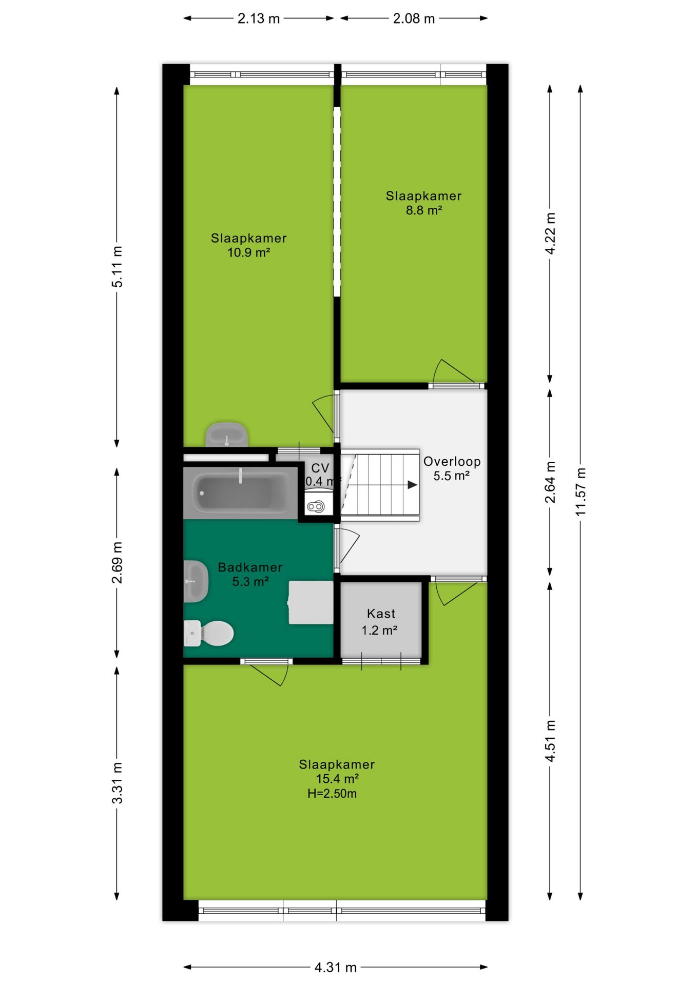
Tweede verdieping
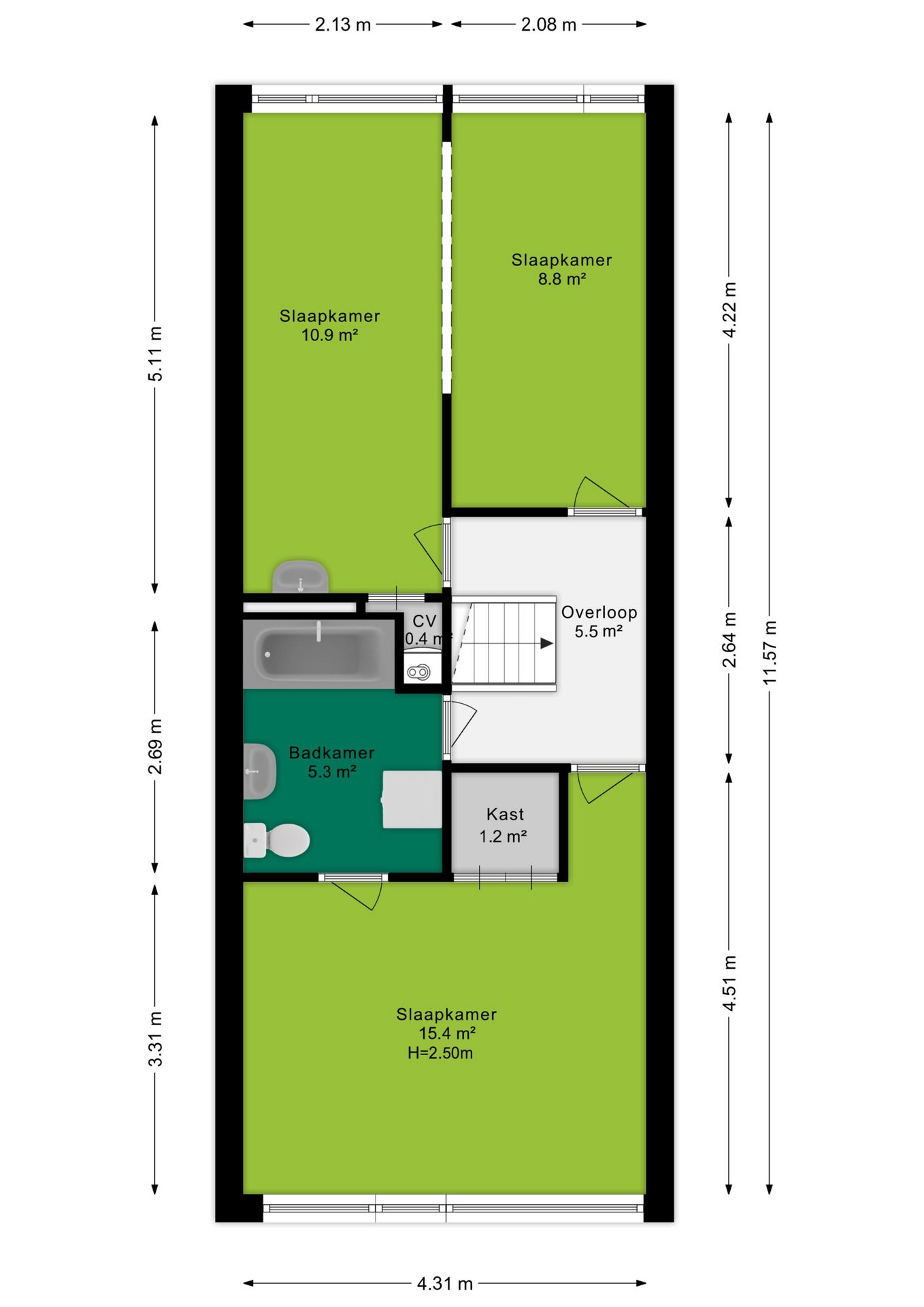
Op de tweede verdieping vind je twee ruim bemeten slaapkamers, met de mogelijkheid om er eenvoudig een derde slaapkamer van te maken. Alle kamers genieten van voldoende daglicht en zijn voorzien van een nette laminaatvloer. De badkamer is uitgerust met een ligbad, douche, wastafel, toilet en radiator, en beschikt over aansluitingen voor zowel de wasmachine als de cv-installatie.

Buitenruimte
De diepe tuin, gelegen op het zuidwesten stelt je in staat om de hele dag van de zon te genieten. Er is volop ruimte om een comfortabel zitgedeelte te creëren of de tuin geheel naar eigen smaak in te richten. Aan de voorzijde van de woning vind je een oprit met parkeerruimte voor de auto, evenals een garage die zowel als parkeerplek als berging te gebruiken is.

Bijzonderheden
- Bouwjaar 1970
- Woonoppervlakte 125 m²
- Perceeloppervlakte 129 m²
- Energielabel C
- Eigen oprit en inpandige garage
- Diepe tuin op het zuidwesten
- Voor- en achter vrij gelegen

Samenvatting
Een ruime en lichte tussenwoning met twee slaapkamers, twee woonkamers en een diepe tuin op het zuidwesten. De combinatie van ruimte, rust, ligging en parkeergelegenheid op eigen terrein maakt dit een ideale gezinswoning in een fijne woonomgeving in Ede.

Koopovereenkomst:
Bij de verkoop zal er een standaard NVM koopovereenkomst worden gehanteerd. Bij woningen welke ouder zijn dan 20 jaar, worden de volgende clausules opgenomen in de koopovereenkomst:

Asbestclausule;
Ouderdomsclausule.


Koop je de woning zonder voorbehoud van financiering? Dan zullen wij een termijn hanteren van 6 weken na het opstellen van de koopovereenkomst voor het storten van de bankgarantie/waarborgsom.

Deze informatie is door ons met de nodige zorgvuldigheid samengesteld. Onzerzijds wordt echter geen enkele aansprakelijkheid aanvaard voor enige onvolledigheid, onjuistheid of anderszins, dan wel de gevolgen daarvan. Alle opgegeven maten en oppervlakten zijn indicatief.
+ toon meer
deze woning is Verkocht

Hogerhorst 7 Ede

Hogerhorst 7

6714 LA, Ede
Ditters open huis: 5 april 2025 10:00 - 12:00 uur
Landelijke Open Huizen Route NVM: 5 april 2025 11:00 uur - 15:00 uur
Vanaf€ 385.000 k.k.

Schakel een aankoopmakelaar in.

Snel handelen helpt je jouw droomhuis te bemachtigen. Zo vergroot je de kans dat je er op tijd bij bent.
Ede
verkocht

Of maak vrijblijvend een zoekprofiel aan.

Vergelijkbare woningen

Hypotheken

Onafhankelijk hypotheekadvies

  • Ligt jouw droomhuis binnen handbereik?
  • Wil je jouw huidige hypotheek verhogen?
  • Is er hypotheekruimte voor verduurzaming?

Blijf op de hoogte

Ontvang als eerste updates over nieuw aanbod en mis geen enkele kans om jouw droomwoning te vinden.

Gratis waardebepaling of verkoopgesprek

Met de vrijblijvende waardecheck weet je snel waar je aan toe bent. Onze makelaars kijken naar de lokale markt en vergelijkbare woningen in jouw buurt om een goede schatting te geven.

Realiseer al jouw woondromen met Ditters

Wij zijn een team van gedreven vastgoedexperts met een passie voor het maken van verbindingen – tussen kopers en verkopers, huurders en verhuurders. Met een frisse kijk op de makelaardij combineren we expertise met creativiteit. Onze makelaars luisteren écht en nemen de tijd om jouw wensen te begrijpen.


Bij Ditters sta je er niet alleen voor. We denken met je mee, begeleiden je in elke stap en zijn altijd bereikbaar voor vragen. Neem gerust contact met ons op – we helpen je graag verder!