Omschrijving

Dit ruime appartement van 108 m² is verdeeld over vier verdiepingen en biedt verrassend veel leefruimte. Met drie slaapkamers, een moderne keuken, een diepe tuin én een balkon op het zuiden is dit een ideale woning voor gezinnen, thuiswerkers of starters die meer ruimte zoeken. Dankzij energielabel A, goede isolatie en 6 zonnepanelen woon je hier bovendien comfortabel en energiezuinig.

Ligging
De woning ligt in Kernhem, een kindvriendelijke en groene wijk in Ede. Je woont hier op drie minuten fietsen van een compleet winkelcentrum met supermarkten, drogisterijen, bakker en groenteboer. Binnen vijf minuten rijd je naar Ede-Centrum, of juist de heide op voor een wandeling. Ook de aansluiting op de A12 en A30 is uitstekend. In de wijk bevinden zich meerdere basisscholen en speeltuinen. Een ideale combinatie van rust, bereikbaarheid en voorzieningen.

Kenmerken op een rij:
• Lange achtertuin, altijd wel een zonnige plek
• Vier woonlagen (108 m² woonoppervlak)
• Moderne keuken met inbouwapparatuur
• Badkamer met douche én ligbad
• Groen en rustig woongebied, ideaal om te wandelen
• Kindvriendelijke wijk met scholen in de buurt


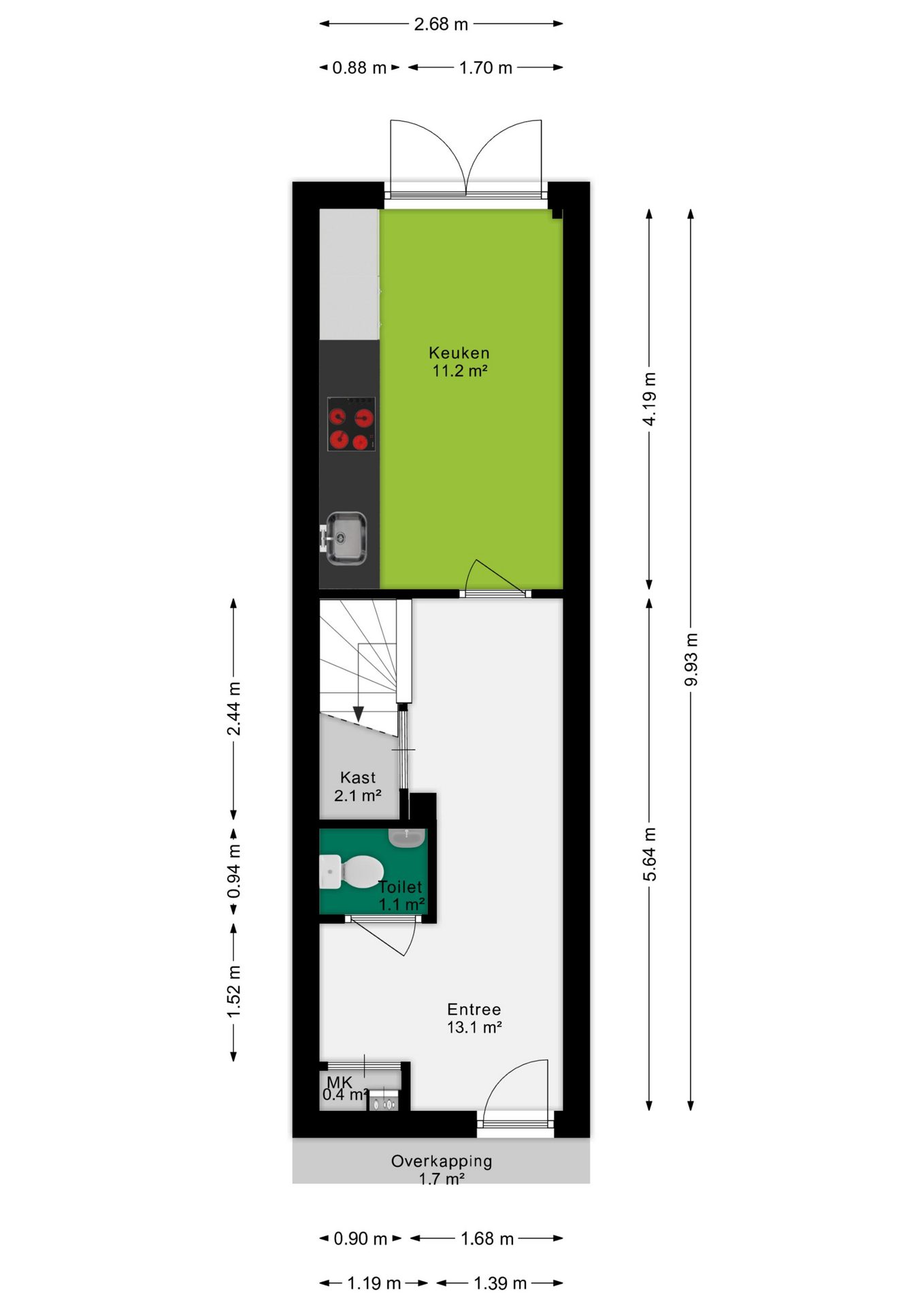
Begane grond
Je komt binnen in een ruime hal met meterkast en toiletruimte. Loop je door, dan kom je in de moderne keuken, voorzien van combi-oven, vaatwasser, kookplaat en koel-vriescombinatie. Er is plek voor een ontbijthoek of eettafel. De openslaande deuren geven direct toegang tot de diepe tuin, waardoor binnen en buiten prettig met elkaar verbonden zijn.

Eerste verdieping
Op de eerste verdieping bevindt zich de ruime woonkamer van bijna 23 m². Dankzij de hoge plafonds en grote raampartijen voelt de ruimte heerlijk ruim en licht aan. Er is ruimte genoeg voor zowel een zithoek als een ruime eettafel. Doordat de woonkamer op de tweede verdieping ligt, geniet je van optimale privacy en geen ongewenste inkijk.

Tweede verdieping
Vanaf de overloop heb je toegang tot een slaapkamer van circa 11 m² gelegen aan de rustige achterzijde. Daarnaast vind je op deze verdieping een apart toilet en de verzorgde badkamer, voorzien van een ligbad, douche en wastafelmeubel. De aansluitingen voor de wasmachine en droger zijn hier praktisch weggewerkt.

Derde verdieping
Op de bovenste verdieping bevindt zich een ruime kamer met een praktische scheidingswand, ideaal als hobbyruimte, extra slaapkamer of werkplek. De afgescheiden kleinere ruimte is handig te gebruiken als extra bergruimte of als inloopkast. Vanuit deze verdieping heb je toegang tot het balkon op het zuiden. Dit balkon biedt dankzij de hoge muren veel privacy, terwijl kleine raampjes zorgen voor een prettige lichtinval.

Buitenruimte
De diepe achtertuin ligt op het noorden, maar door de lengte is er de hele dag door wel een zonnige plek te vinden. Via de openslaande deuren in de keuken stap je zo de tuin in. Achterin staat een houten berging van circa 9 m², perfect voor fietsen en opslag. Daarnaast geniet je aan de voorzijde van een kleine overkapping waar je heerlijk buiten kunt zitten.

Bijzonderheden
• Bouwjaar 2001
• Woonoppervlakte 108 m²
• Energielabel A
• Volledig geïsoleerd
• ? zonnepanelen
• Buitenschilderwerk in 2024 uitgevoerd
• Balkon op het zuiden en ruime tuin op het noorden
• Openbare parkeergelegenheid in de straat

Koopovereenkomst:
Bij de verkoop zal er een standaard NVM-koopovereenkomst worden gehanteerd.
Bij woningen ouder dan 20 jaar worden de volgende clausules opgenomen:
• Asbestclausule
• Ouderdomsclausule

Koop je de woning zonder voorbehoud van financiering? Dan hanteren wij een termijn van zes weken na het opstellen van de koopovereenkomst voor het storten van de waarborgsom of bankgarantie.

Deze informatie is met zorg samengesteld. Er wordt geen aansprakelijkheid aanvaard voor onvolledigheden of onjuistheden. Alle opgegeven maten en oppervlakten zijn indicatief.
+ toon meer
deze woning is Verkocht

Laan van Kernhem 37 Ede

Laan van Kernhem 37

6718 HP, Ede
Ditters open huis: 5 april 2025 10:00 - 12:00 uur
Landelijke Open Huizen Route NVM: 5 april 2025 11:00 uur - 15:00 uur
Vanaf€ 389.500 k.k.

Schakel een aankoopmakelaar in.

Snel handelen helpt je jouw droomhuis te bemachtigen. Zo vergroot je de kans dat je er op tijd bij bent.
Ede
verkocht

Of maak vrijblijvend een zoekprofiel aan.

Vergelijkbare woningen

Hypotheken

Onafhankelijk hypotheekadvies

  • Ligt jouw droomhuis binnen handbereik?
  • Wil je jouw huidige hypotheek verhogen?
  • Is er hypotheekruimte voor verduurzaming?

Blijf op de hoogte

Ontvang als eerste updates over nieuw aanbod en mis geen enkele kans om jouw droomwoning te vinden.

Gratis waardebepaling of verkoopgesprek

Met de vrijblijvende waardecheck weet je snel waar je aan toe bent. Onze makelaars kijken naar de lokale markt en vergelijkbare woningen in jouw buurt om een goede schatting te geven.

Realiseer al jouw woondromen met Ditters

Wij zijn een team van gedreven vastgoedexperts met een passie voor het maken van verbindingen – tussen kopers en verkopers, huurders en verhuurders. Met een frisse kijk op de makelaardij combineren we expertise met creativiteit. Onze makelaars luisteren écht en nemen de tijd om jouw wensen te begrijpen.


Bij Ditters sta je er niet alleen voor. We denken met je mee, begeleiden je in elke stap en zijn altijd bereikbaar voor vragen. Neem gerust contact met ons op – we helpen je graag verder!