Ben je op zoek naar een fijne gezinswoning met een zonnige tuin, vier slaapkamers en een geweldige ligging in Ede? Zoek niet verder! Deze tussenwoning uit 1988 biedt een comfortabel en compleet gezinshuis mét energielabel B en een heerlijke tuin op het zuidoosten.
Deze woning ligt op een toplocatie! In de directe omgeving vind je het gezellige winkelcentrum Stadspoort en een bioscoop, ideaal voor een avondje uit of je dagelijkse boodschappen. Met de A12 op slechts 4 minuten rijden, zijn grotere steden zoals Arnhem of Utrecht binnen handbereik. Daarnaast zijn scholen en openbaar vervoer op loop- of fietsafstand aanwezig. En ook de natuur is dichtbij: geniet van een heerlijke wandeling of fietstocht in de prachtige Veluwse bossen.
Belangrijkste kenmerken:
+ Ruime tussenwoning met 4 slaapkamers
+ Zonnige tuin op het zuidoosten
+ Houten berging in de achtertuin en stenen berging in de voortuin
+ Volledig geïsoleerd en voorzien van energielabel B
+ Gelegen op een ideale locatie nabij bioscoop, winkels en uitvalswegen
+ Voldoende openbare parkeergelegenheid in de directe omgeving
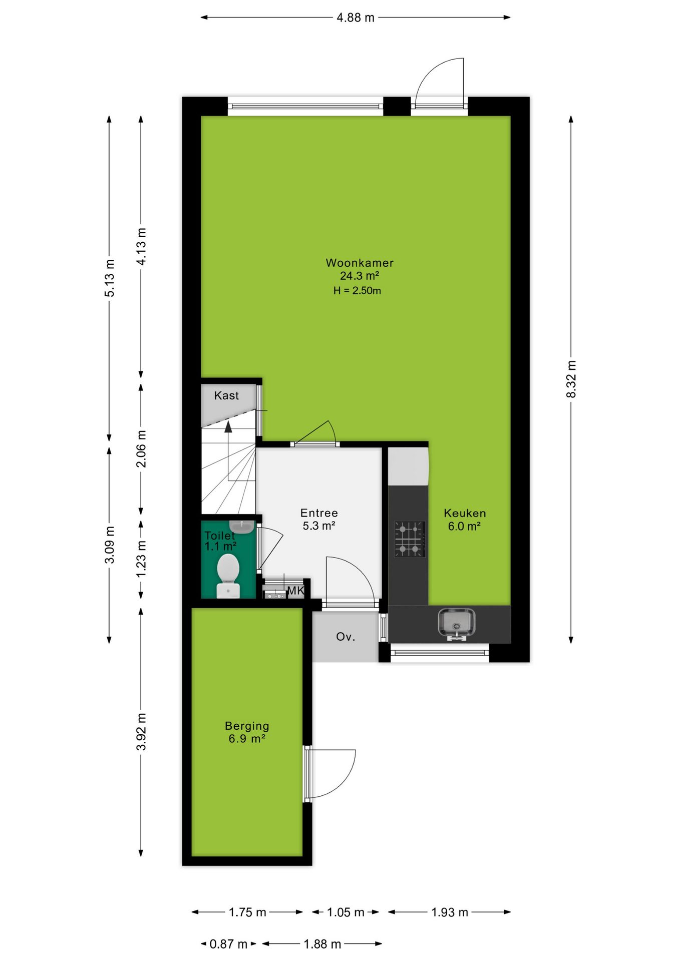
Indeling
Begane grond
Via de entree bereik je de hal met de meterkast en het toilet. Vanuit de hal loop je door naar de ruime, lichte woonkamer van circa 24 m². Hier geniet je van een prettige lichtinval door de grote raampartijen. Aangrenzend bevindt zich de keuken in hoekopstelling, uitgerust met een afzuigkap, wasbak en ruimte voor vrijstaande apparatuur.
Eerste verdieping
De eerste verdieping biedt drie fijne slaapkamers. Aan de voorzijde bevindt zich een slaapkamer van circa 10 m², voorzien van een praktische inbouwkast. Aan de achterzijde vind je twee slaapkamers van circa 7 m², beide met een dakraam. De badkamer is voorzien van een wastafel, inloopdouche, toilet en designradiator.
Tweede verdieping
Via een vaste trap bereik je de zolderverdieping. Hier tref je op de overloop een aansluiting voor de wasmachine en droger, ook hangt hier de cv-ketel. Daarnaast is er een vierde slaapkamer van circa 9 m² met een dakraam. Verder biedt deze verdieping volop opbergruimte, onder andere achter de knieschotten.
Tuin
De zonnige achtertuin, gelegen op het zuidoosten, is de ideale plek om de hele dag van de zon te genieten. Er is voldoende ruimte om meerdere gezellige zithoeken te creëren. Voor de nodige schaduw op warme dagen biedt het aanwezige zonnescherm uitkomst. Achter in de tuin staat een houten berging van circa 3 m² groot. De tuin is bovendien eenvoudig toegankelijk via een achterom. Aan de voorkant van de woning bevindt zich nog een extra stenen berging van circa 7 m².
Koopovereenkomst:
Bij de verkoop zal er een standaard NVM koopovereenkomst worden gehanteerd.
Bij woningen welke ouder zijn dan 20 jaar, worden de volgende clausules opgenomen in de koopovereenkomst:
- Asbestclausule
- Ouderdomsclausule
Koop je de woning zonder voorbehoud van financiering? Dan zullen wij een termijn hanteren van 6 weken na het opstellen van de koopovereenkomst voor het storten van de bankgarantie/waarborgsom.